立式螺旋給料機適合垂直或大傾角輸送粉狀、顆粒狀及非粘性干燥物料,接觸原料部分均采用不銹鋼制作,輸送過程中原料完全不受污染,不帶入任何異物,能使生產過程中實現全封閉自動化.
全國統一銷售熱線0373-268 2333
免費獲取報價
立式螺旋給料機又叫垂直螺旋給料機、垂直螺旋喂料機、垂直螺旋上料機,簡稱立式給料機,適合垂直或大傾角輸送粉狀、顆粒狀及非粘性干燥物料。進料口與出料口之間的距離為2.5米-15米,每0.5米一檔,可根據用戶需要選用。在接觸原料部分,均采用不銹鋼制作,輸送過程中原料完全不受污染,不帶入任何異物,能使生產過程中實現全封閉自動化。
立式螺旋給料機適宜垂直或大傾斜角輸送粉狀、粒狀、非粘性的容重≤1.3t/m³的干燥物料,如糧食,油麩、飼料、化工原料、水泥等。物料溫度一般不能超過80℃,立式螺旋給料機由于機殼內流通面積較小,所以不適宜輸送易變質、戰象大、易結塊的物料。
1、垂直或大傾角布置,電機安裝在主機頭部,占地面積小。
2、每小時可輸送9-140立方粉狀、顆粒狀物料,輸送高度為15米。
3、出料端設置有清掃裝置,物料不易堵塞。
4、采用密封式設計,減少輸送過程中的粉塵污染。
5、可以根據現場要求加裝剎車式萬向輪,可隨意移動,固定給料機。
6、能同時進行于燥、加熱、冷卻、分選、粉碎、混合與除塵等工藝操作。
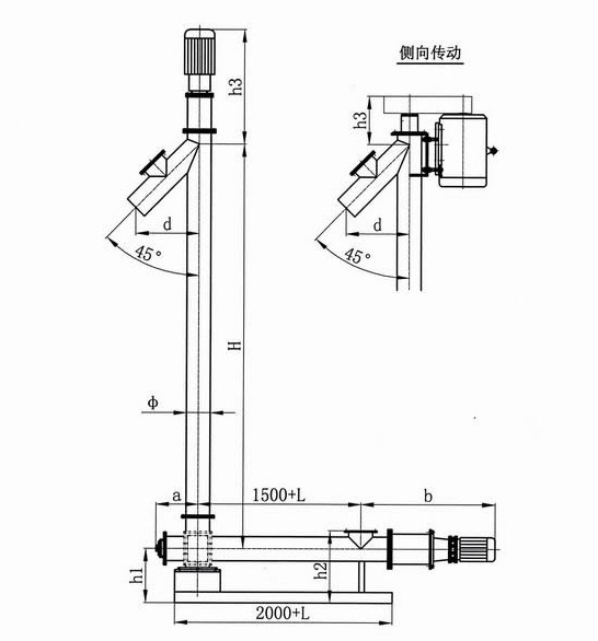
立式螺旋給料機是由驅動裝置(電動機、減速器、聯軸節)、螺旋、軸承、料槽、進料口、出料口等幾部分組成的
立式螺旋給料機輸送過程中,物料隨著螺旋作高速旋轉,由于離心力的作用,物料在料槽內形成若干同心圓層,物料的最外層緊貼槽壁。當螺旋轉速不高時,物料與螺旋表面的摩擦力大于物料所受到的離心力,物料與螺旋一起作旋轉運動,保持相對靜態;當螺旋轉速較高時,物料所受到的離心力大于物料與螺旋表面的摩擦力.物料向螺旋的外緣移動,對料槽壁產生壓力并同時產生摩擦力.只有當這個摩擦力大于物料與螺旋表面之間的摩擦力以及物料重力的分力之和時,物料將與螺旋表面之間發生滑動并沿反方向的螺旋形軌跡上升,即物料被垂直部分的螺旋推送上升,從而達到垂直上升輸送的目的;否則只是旋轉而不能上升。將此時的轉速稱為臨界轉速,只有當輸送機的轉速大于臨界轉速時.物料才能實現向上輸送。
1、立式螺旋給料機可按下面的經驗公式進行計算 Q=8.007·D·3n (m3/n) 式中:Q=輸送量(m3/n); D=螺旋直徑(m); n=螺旋轉速(r/min )。
2、立式螺旋給料機的電機功率按下面的經驗公式進行計算 N=0.015258856Q·r·H (Kw) 式中:N=電機功率(Kw );Q=輸送量(m3/n); r=物料容重(t/m3); H=進料口到出料口之間的距離(m )。
3、長度組合: 立式螺旋給料機高度(訂貨高度),是指進料口到出料口之間的距離,從2.5米起到15米止,0.5米一檔,用戶可以根據需要選用。
4、驅動裝置: 立式螺旋給料機采用上驅動型式。電機安裝在主機的頭部,動力經皮帶傳送到主軸上,從而帶動螺旋運轉。
200型和250型設置單驅動型式,配置電機功率15Kw;315型設置單驅動和雙驅動兩種型式。當電機功率小于或等于15Kw時,采用單驅動型式,當電機功率大于15Kw時,則采用雙驅動型式。強迫進料裝置另配驅動裝置在地面安裝,應由生產廠統一設計,用戶自行設計的,由用戶自行負責。
Copyright ? 2008-2019螺旋輸送機廠家-新鄉市大漢振動機械有限公司 All Rights Reserved 版權所有
網站備案號:豫ICP備09002479號-47